Medical Suites Development

Price Upon Request · Commercial Property · Auction 24 November 2015
For Sale

422 & 426 Quebec Street, Faerie Glen

Prime location for Medical Suites or Office Park

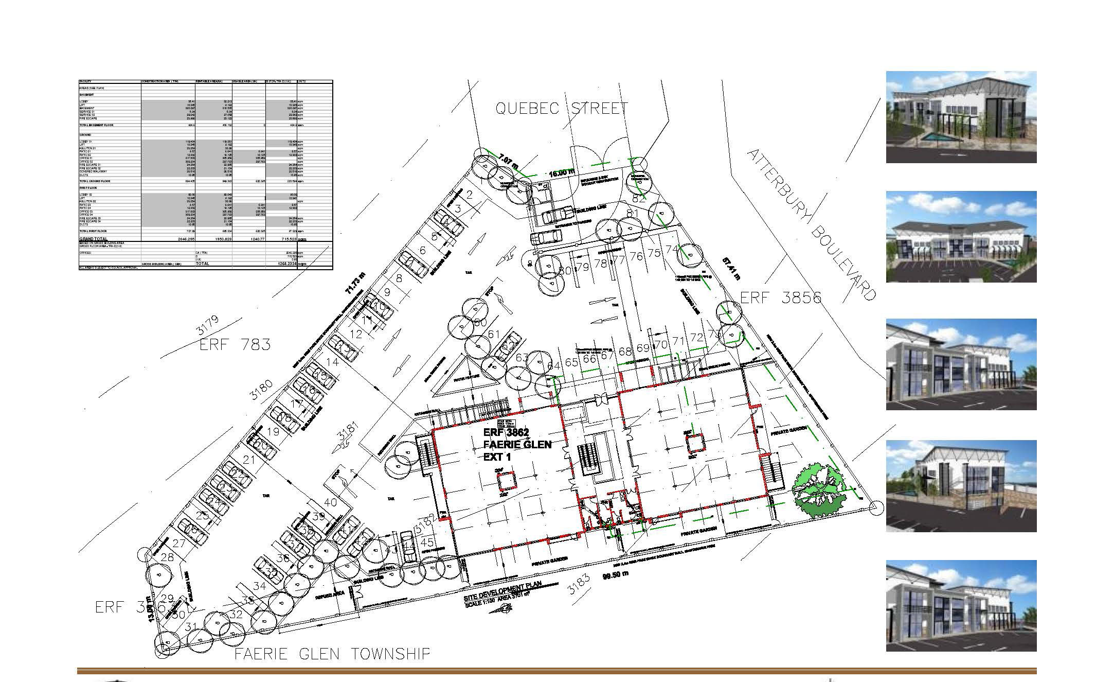
A 3701 sqm stand zoned Commercial in close proximity to Atterbury Boulevard and Menlyn Shopping mall. Easy access to the N1 highway. Proposed GLA 1264 sqm on artist impression

Quick Facts

  • Zoned: Commercial
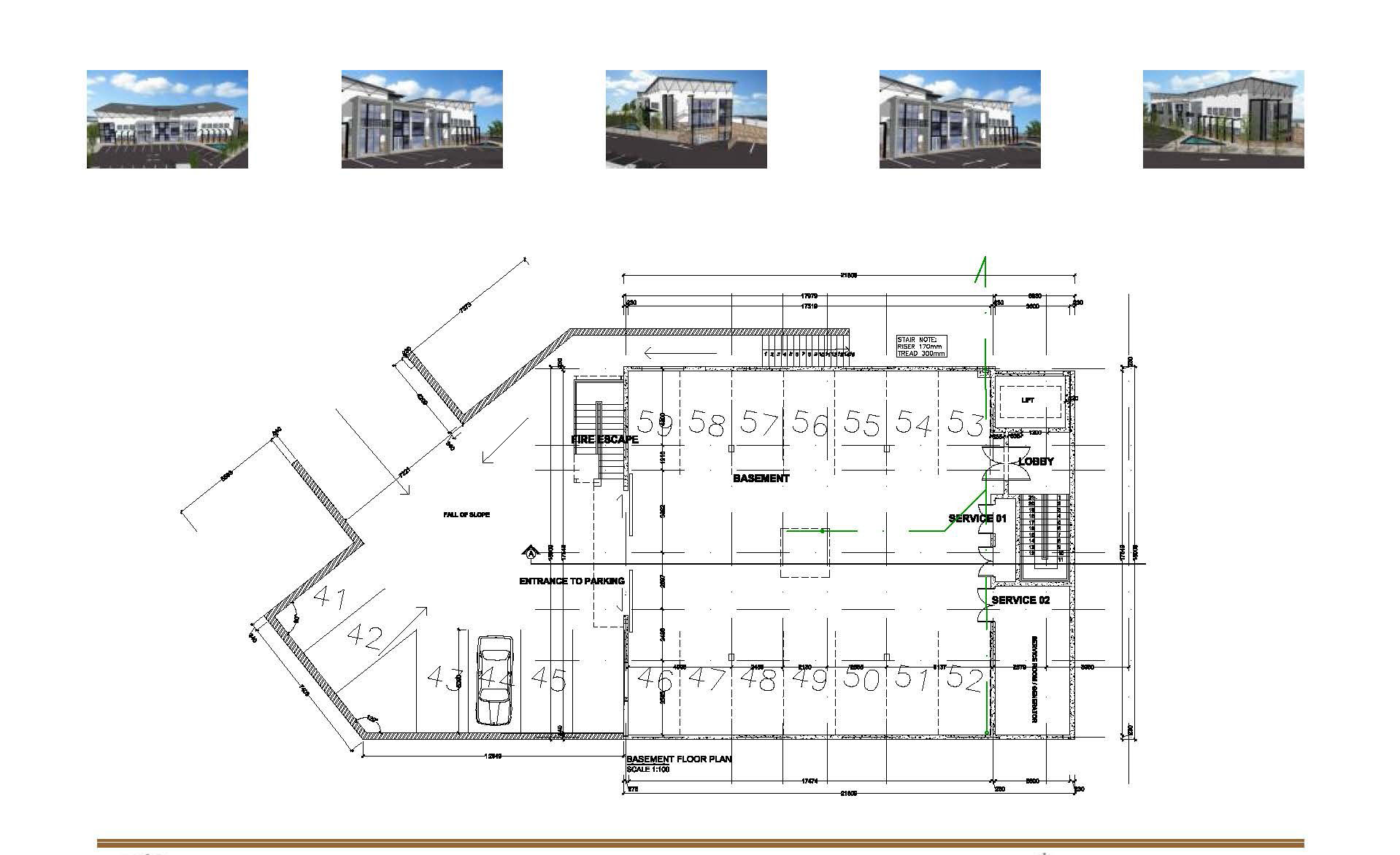
  • Stand Size: 3862sqm
  • 14 basement parking bays
  • Rates: TBA
  • Levies: TBA

Get the InfoPack


Please provide the following information
Subscribe me to your list

Features

Additional details

Floor Plans and Site Layouts

Second Floor

Second Floor

Ground Floor

Ground Floor

Layout

Layout

Basement

Basement

Location

426 Quebec Street, Faerie Glen, Pretoria, South Africa

Agent

Elke Nelson

Stonehenge Property Auctions

+27 11 513 3503
+27 82 385 1340

Since her introduction to property industry in 2006, Elke Nelson has established herself as one of the leading Property Specialists in Gauteng. With over 8 years experience in the field, she has gained in depth knowledge in Property Sales, Rentals..

Contact

Message has been sent successfully.